Zweigeschossiges Einfamilienhaus
München, Canisiusstraße
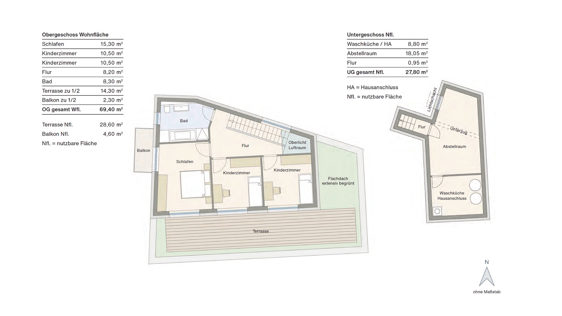
Wohnfläche 192,10 m2 | Dachterrasse ca. 54 m2 | Nutzbare Fläche 246,85 m2 | Grundstück 427 m2
Attraktiver, kubistischer Entwurf einer außergewöhnlichen Immobilie. Durch die optimale Anpassung an das trapezförmige Grundstück ergibt sich eine Grundrisszuschnitt, den man nicht alle Tage wiederfindet. Im Erdgeschoss befindet sich ein großzügiger, langgestreckter, sonnendurchfluteter Raum mit Küche, Ess- und Wohnzimmer als moderne, offene Lösung und großer Gartenterrasse, die über großflächige Glastüren erreichhbar ist. Der Gästebereich verfügt über ein eigenes Bad und eine separate Gartenterrasse. Ein großes Schlafzimmer, zwei Kinderzimmer und ein tolles Familienbad befinden sich im Obergeschß, das von einer teilweise begrünten Dachterrasse umschlossen wird. In der Teilunterkellerung befindet sich der Technikraum.
Die Bauumsetzung erfolgt im höchsten Energieeffizienzstandard und ist damit optimal auf die Zukunft vorbereitet.
Lage in München
Hadern ist über die Stadtgrenzen hinaus bekannt durch das Universitätsklinikum. Es ist der größte Krankenhauskomplex Münchens und bedeutender Arbeitgeber. Das Gesicht des südlichen Teils des Stadtbezirks ist geprägt durch Einfamilienhäuser und Villen. Ruhige Anwohnerstraßen, Parkanlagen und der nahe Forst stehen für gehobene Wohnqualität. Der U-Bahnhof Großhadern liegt ca. 10 Gehminuten vom Objekt entfernt und mit der Linie U6 ist man bereits nach 16 Minuten am Marienplatz im Zentrum Münchens. In nächster Nähe bieten Supermärkte, zahlreiche kleine Läden, ein Wochenmarkt, Lokale und Restaurants alles für den täglichen Bedarf. Dank der Lage des Stadtteils im Süden der Stadt sind die Münchner Naherholungsgebiete der Oberbayerischen Seenplatte und auch die Alpen schnell erreicht. Nur ca. 20 km sind es z.B. bis zum Starnberger See.

